Kings Wood Park, Epping

For Sale £800,000

4 3 2
* PRICE RANGE: £800,000 - £825,000 * SEMI DETACHED HOME *OPEN PLAN FAMILY AREA* GARAGE * NO ONWARD CHAIN*

Nestled in the highly sought-after Kings Wood Park area of Epping, this charming semi-detached townhouse offers a perfect blend of comfort and modern living. Spanning an impressive 1,830 square feet, the property boasts two inviting reception rooms, four well-proportioned bedrooms, and three bathrooms, making it an ideal family home.

Upon entering, you are greeted by a welcoming hallway that leads to a convenient ground floor cloakroom. The spacious lounge features double doors that open into a stunning open-plan family area, creating a seamless flow between spaces. The beautifully fitted integrated kitchen, complete with a central island, is perfect for culinary enthusiasts and is complemented by a delightful dining area that overlooks the rear garden through elegant French doors.

The first floor is home to an impressive master bedroom, which benefits from French doors that lead to a private balcony, offering lovely views of the garden. This floor also includes a further double bedroom and a family bathroom, ensuring ample space for relaxation. Ascending to the top floor, you will find two additional double bedrooms and a convenient Jack and Jill shower room.

The exterior of the property is equally appealing, with a front garden bordered by hedges for added privacy and mature planting. Side access leads to a superbly maintained rear garden, featuring a patio area with a charming wooden gazebo, perfect for alfresco dining. The garden is a true haven for gardening enthusiasts, adorned with a lush lawn, mature trees, and vibrant flower borders. Additionally, a garage with an up-and-over door, complete with power and light, provides further convenience, along with additional parking in front.

Situated adjacent to the picturesque Epping Forest and just a walk from the town centre, this property is a must-see for those seeking a delightful home in great location.

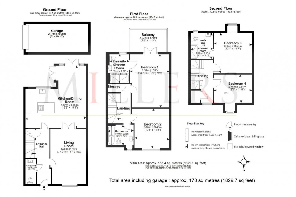
GROUND FLOOR

Cloakroom WC (1.83m x 1.02m)

Living Room (5.33m x 3.54m)

Kitchen Dining Room (5.85m x 5.83m)

FIRST FLOOR

Bedroom One (5.38m x 3.79m)

Balcony (2.22m x 3.49m)

En-suite Shower Room (2.64m x 1.80m)

Bedroom Two (3.87m x 3.43m)

Family Bathroom (1.98m x 2.21m)

SECOND FLOOR

Bedroom Three (3.67m x 3.54m)

Bedroom Four (2.76m x 3.55m)

Jack & Jill Shower Rm (2.51m x 2.11m)

EXTERIOR

Garage (6.05m x 2.74m)

Rear Garden (11.43m x 7.98m)

  • PRICE RANGE: £800,000 - £825,000
  • SEMI DETACHED TOWN HOUSE
  • OPEN PLAN KITCHEN/DINER
  • FOUR DOUBLE BEDROOMS
  • GARAGE & PARKING
  • BEAUTIFUL MATURE GARDEN
  • SHORT WALK TO THE HIGH STREET
  • 4 MINS - 1.2 MILES TO STATION
  • OPPOSITE EPPING FOREST
  • APPROX 1,651 SQ FT VOLUME
Floorplan for Kings Wood Park, Epping
EPC Graph for Kings Wood Park, Epping
Similar Properties

Book a valuation

Find out how much your property is worth