Manor Road, Chigwell

Sold Subject to Contract £475,000

2 1 1
* GRADE TWO LISTED * TWO/THREE BEDROOM * STONES THROW TO STATION * WALKING DISTANCE OF SHOPS * BEAUTIFULLY PRESENTED * GREAT SIZE GARDEN *

Nestled on the charming Manor Road in Chigwell, this delightful Grade II listed cottage offers a unique blend of historical character and modern living. With two to three well-proportioned bedrooms, this property provides ample space for families or those seeking a comfortable home. The inviting reception room serves as a perfect gathering space, ideal for entertaining guests or enjoying quiet evenings in.

The cottage is conveniently located just a stone's throw away from Grange Hill Station, making commuting to London and surrounding areas a breeze. Additionally, residents will appreciate the close proximity to local shops and schools, ensuring that all essential amenities are within easy reach.

This property boasts great size accommodation, allowing for a flexible living arrangement that can adapt to your needs. The charm of the cottage, combined with its prime location, makes it an excellent choice for anyone looking to settle in this sought-after area. Whether you are a first-time buyer, a growing family, or simply seeking a peaceful retreat, this cottage on Manor Road is sure to impress. Don't miss the opportunity to make this enchanting home your own.

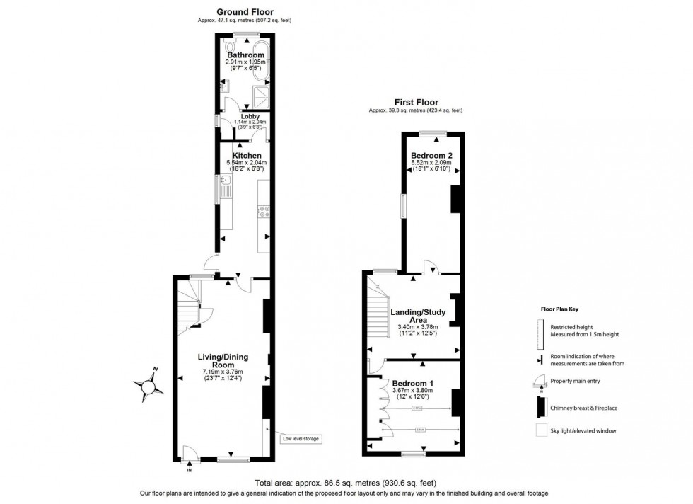
GROUND FLOOR

ENTRANCE

Living/Dining Room (7.19m x 3.76m)

Kitchen (5.54m x 2.04m)

Lobby

Bathroom (2.92m x 1.96m)

FIRST FLOOR

Landing/Study Area (3.40m x 3.78m)

Bedroom 1 (3.67m x 3.80m)

Bedroom 2 (5.52m x 2.09m)

EXTERIOR

Front Garden (20.90m x 3.61m)

  • GRADE 2 LISTED COTTAGE
  • 2/3 BEDROOMS
  • CLOSE TO GRANGE HILL STATION
  • GOOD SIZE KITCHEN
  • CLOSE TO LOCAL SHOPS
  • WALKING DISTANCE OF SCHOOLS
  • VIEWS VERY WELL
  • LOUNGE/DINER
  • SPACIOUS BATHROOM
  • FRONT GARDEN
Floorplan for Manor Road, Chigwell
EPC Graph for Manor Road, Chigwell
Similar Properties

Book a valuation

Find out how much your property is worth